Planung
Projektplanung
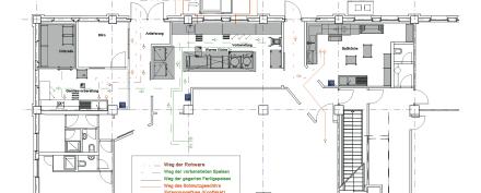
Das Ergebnis einer erfolgreichen Gastronomie steht und fällt mit der vorangegangenen Einrichtung. Von der Planung bis zur Eröffnung sind zahlreiche Entscheidungen zu treffen die über den Erfolg Ihres Projektes entscheiden. Um im Projektverlauf mögliche Schwierigkeiten zu erkennen, stehen wir mit unserer langährigen Erfahrung zur Verfügung um Sie aktiv bei Ihren Entscheidungen zu unterstützen.
Projektmanagement
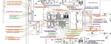
Projektmanagement beinhaltet für uns nur solche Tätigkeiten, die für Sie einen Mehrwert schaffen. Innerhalb unseres Projektsupports planen wir mit kleinen Schritten und geben uns und unseren Kunden damit die Gelegenheit sich aktiv an der Erstellung eines Konzeptes heranzuarbeiten. Unsere Kunden haben dadurch frühzeitig Gelegenheit das Projekt selbst zu steuern um bestmögliche Erfolge zu erzielen
Die von uns entwickelten Lösungen und Produkte werden von uns nach Wunsch installiert. Wir unterstützen unsere Kunden dabei tatkräftig und stehen mit Wort und Tat ständig in Reichweite.




